株式会社北摂ライフスタイル > 株式会社北摂ライフスタイルのスタッフブログ記事一覧 > 「専有部分」と「共有部分」の違いって?

「専有部分」と「共有部分」の違いって?

≪ 前へ|自分で見つける理想のマイホーム♪   記事一覧   「不動産値引きコツ」言うだけで得する!?|次へ ≫

「専有部分」と「共有部分」の違いって?

実際どんな違いがあるの?


物件を探している時に「専有部分(面積」「共有部分」という文言を
一度は見たことがあるのではないでしょうか?

文言だけをみると、なんとなく意味合いはわかるけど・・・実際どのような意味があるのか?
今回はそちらをご説明していこうと思います(*^-^*)



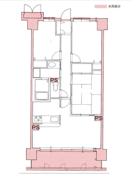
【専有部分】とは?


躯体(コンクリート)で区画された住戸の内側を専有部分といいます。

下の図の「青い部分」が専有部分です(^^♪



専有部分は別名「専有面積」といいます。
大手のサイトなどで物件を見たときは大半がこの「専有面積」と記載があります!
※専有面積にバルコニーは含まれません。

マンションの場合、専有部分はオーナー様の所有物になりますので、部屋の扉やクロスの変更など、インテリアを変更することが可能です!
※リフォームの際は事前に管理会社へ確認をしましょう!



「共有部分」とは?


専有部分以外を「共有部分」といいます。
下の図でいうピンクの部分です(^^♪


共有部分に含まれる箇所は下記の通りです。

■バルコニー   ■ルーフバルコニー  ■玄関扉
■インターホン  ■専用庭       ■目隠しルーバー
■PS(パイプスペース)  ■窓ガラス

※✘窓ガラスや玄関扉に手を加える事は禁止です!

もし共有部分の設備が故障したら?


※マンション内の駐車場も「共有部分」にあたります。
■機械式駐車場 ■エレベーター ■インターネット設備 ■セキュリティ設備
などの共有部分が故障した場合は必ず管理会社へ連絡してくださいね♪


◆―――――◆―――――◆―――――◆―――――◆―――――◆―――――



いかがだったでしょうか?よく見る文言でも中身は全く違う内容という事もあるので、
知識を持って素敵なお家探しをしましょう♪


共用部分は区分所有者全員の財産です!


共用部分の管理が行き届いているかどうかは、そのマンションの資産価値を見定める重要なポイントになるとも言われています!!

特に、日ごろよく利用するエントランス、エレベーター・廊下・階段・ゴミ置場・駐車場・自転車置場、集会室なども区分所有者全員の財産として、大切に扱いましょう♪





≪ 前へ|自分で見つける理想のマイホーム♪   記事一覧   「不動産値引きコツ」言うだけで得する!?|次へ ≫
  • 学区検索
  • LINE
  • 会員登録
  • 会員登録がお済の方はこちら

  • 売却査定
  • 掲載物件数
    ロード中
    公開物件数
    ロード中
    本日の更新件数
    ロード中
    会員物件数
    ロード中
  • 更新物件情報

    2026-04-18
    エムアンドエッチ第3の情報を更新しました。
    2026-04-18
    渋谷3丁目の情報を更新しました。
    2026-04-18
    星和プラネタウン千里南第1期C棟の情報を更新しました。
    2026-04-18
    セントラルステージ千里一番館の情報を更新しました。
    2026-04-18
    クラウンハイム豊中柴原モノレール駅前の情報を更新しました。
    2026-04-18
    豊中上野西パークハウスの情報を更新しました。
    2026-04-18
    アピア2の情報を更新しました。
    2026-04-18
    鉢塚3丁目の情報を更新しました。
    2026-04-18
    花屋敷つつじガ丘の情報を更新しました。
    2026-04-18
    つつじが丘2丁目の情報を更新しました。
  • お問い合わせ
  • お客様の声
  • スタッフ紹介
  • 内部ブログ
  • 周辺施設検索
  • アクセスマップ
  • 会社概要

    会社概要
    株式会社北摂ライフスタイル
    • 〒563-0041
    • 大阪府池田市満寿美町2-19
    • 0120-551-007
    • TEL/072-737-6300
    • FAX/072-737-6307
    • 大阪府知事 (2) 第61199号
      ファイナンシャル・プランニング技能士
  • QRコード
  • イオン銀行住宅ローン
  • 物件掲載中!「いえらぶポータル」

 おすすめ物件


エムアンドエッチ第3

エムアンドエッチ第3の画像

価格
3,080万円
種別
中古マンション
住所
大阪府豊中市東寺内町
交通
緑地公園駅
徒歩3分

渋谷3丁目

渋谷3丁目の画像

価格
4,490万円
種別
新築一戸建
住所
大阪府池田市渋谷3丁目8-5
交通
池田駅
バス13分 上渋谷 停歩4分

星和プラネタウン千里南第1期C棟

星和プラネタウン千里南第1期C棟の画像

価格
3,180万円
種別
中古マンション
住所
大阪府吹田市五月が丘東6
交通
南千里駅
バス10分 五月が丘 停歩4分

セントラルステージ千里一番館

セントラルステージ千里一番館の画像

価格
2,299万円
種別
中古マンション
住所
大阪府吹田市樫切山4-22
交通
千里丘駅
徒歩21分

トップへ戻る